This store requires javascript to be enabled for some features to work correctly.

9:00 a.m. - 5:00 p.m.
Business Hours (EST)
  • Monday 9:00 a.m. to 5:00p.m.
  • Tuesday 9:00 a.m. to 5:00p.m.
  • Wednesday 9:00 a.m. to 5:00p.m.
  • Thursday 9:00 a.m. to 5:00p.m.
  • Friday 9:00 a.m. to 5:00p.m.
  • Saturday CLOSED
  • Sunday CLOSED
icon
1-888-828-1688

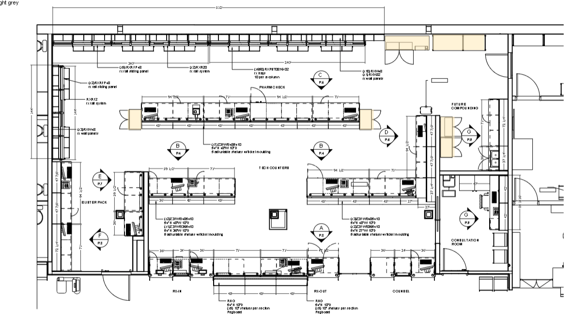
Retail Layout Design To Maximize Sales and Customer Flow

Investing in a professional layout design is one of the smartest steps you can take when opening a retail store. Instead of guessing what will fit, you get a clear, accurate plan that shows you exactly how your space will work before you buy a single fixture.

With a custom layout design, you:

✅ Know exactly how much equipment you need
✅ Choose the right sizes, types, and fittings for every fixture
Maximize every square foot so there’s no wasted space
✅ Create a smooth, comfortable flow for customers and staff
Increase sales potential with strategic product and fixture placement
✅ Gain long-term ROI from a store that’s built to perform

Without a proper floor plan, it’s easy to:

❌ Order too little equipment, then pay extra shipping to fill gaps
❌ Order too much equipment, then lose money on returns and restocking fees
❌ End up with an inefficient, inconsistent layout that confuses customers and hurts sales

Vanguard uses industry-standard best practices to design layouts that are efficient, sales-focused, and tailored to your store. You’ll see your complete, properly equipped store on paper before you spend a dollar on fixtures—so every decision is confident, intentional, and profitable.

LAYOUT DESIGNS FOR STORES ALL SHAPES AND SIZES

WE OFER ONE STOP SHOP SOLUTIONS

We've put together a selection of configuration options and features to give you an idea of the possibilities of our custom gondola shelving systems. These are just a few examples, and there are many more available. Contact us to discuss which options will best suit your needs.

Solid Construction

Canadian made, versatile, high-capacity shelving that makes it easy to merchandise any product category, maximize vertical space, and create clear, shoppable aisles that guide customers through your store.

CUSTOM MILLWORK

Custom-built counters, cabinets, and display units designed to fit your space perfectly, elevate your brand, and create a polished, professional look that builds trust and improves the customer experience.

REMOTE REFRIGERATION

High-performance Canadian made remote refrigeration systems to reduce noise and heat in-store, improve energy efficiency, and support larger, continuous refrigerated lineups for a premium shopping experience.

SELF-CONTAINED REFRIGERATION

Plug-and-play refrigeration units with built-in compressors that are easy to install, move, and service—ideal for smaller stores or cost-conscious projects that still need reliable, attractive cold display.

WALK-IN COOLERS & FREEZERS

Large-capacity refrigerated rooms designed for bulk storage and easy access—keeping product at consistent temperatures, simplifying inventory management, and supporting high-volume operations in grocery, convenience, and foodservice environments.

PALLET RACKING

Heavy-duty racking designed for safe, organized backroom or warehouse storage—allowing you to stock more product, improve picking efficiency, and keep inventory accessible and under control.

WHY CHOOSE VANGUARD?

RECEIVE A FREE CONSULTATION

Contact us today to receive help in creating the perfect retail space for your business, that not only attracts and retains customers, but also promotes efficient business operations. Receive your free consultation within within 24 hours.

  • OUR LOCATION

    Vanguard Store Fixtures Inc.

    1 King Street West, 4800-50, Toronto, ON, M5H 1A1

  • HOURS OF OPERATION:

    Monday to Friday9:00AM - 5:00PM EST
    Saturday & Sunday- CLOSED

  • PHONE:

    TOLL FREE LINE

    1-888-828-1688

  • EMAIL:

    WILL RESPOND WITHIN 24 HOURS